
$1,100,000
2,882
SQ FT
$382
SQ/FT
837 Lewis Road
@ San Miguel Canyon Rd - 59 - Hall Road, Las Lomas, Aromas, Royal Oaks
- 6 Bed
- 4 Bath
- 0 Park
- 2,882 sqft
- ROYAL OAKS
-
-
Sun Oct 26, 1:00 pm - 3:00 pm
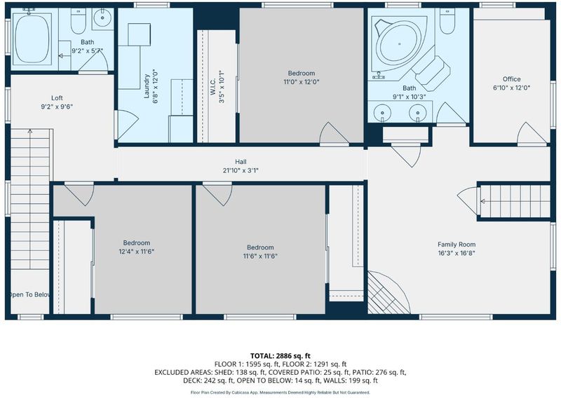
Welcome to this generously sized 6-bedroom, 4-bathroom home nestled in the peaceful community of Royal Oaks. Offering 2,882 sq ft of living space, this unique property lives like two homes in one, with separate entrances for the upstairs and downstairs levels, making it ideal for multi-generational living, rental income, or added privacy. Each level features 3 bedrooms & 2 bathrooms, as well as its own dedicated laundry area, ensuring convenience and functionality throughout. The well equipped kitchen provides ample space for cooking and dining, perfect for the home chef, while the cozy living room fireplace creates a warm and inviting atmosphere. Sitting on an expansive ~44,000 sq ft lot, the property offers abundant outdoor space with room for RV and/or boat parking, gardening, entertaining, or simply enjoying the serene surroundings. Located within the Pajaro Valley Unified School District, this home offers access to local schools and is close to essential amenities while maintaining a quiet, rural feel. Whether you're seeking space, versatility, or a place to grow, this Royal Oaks property presents an exceptional opportunity to create the lifestyle you've been dreaming of.
- Days on Market
- 14 days
- Current Status
- Active
- Original Price
- $1,100,000
- List Price
- $1,100,000
- On Market Date
- Oct 7, 2025
- Property Type
- Single Family Home
- Area
- 59 - Hall Road, Las Lomas, Aromas
- Zip Code
- 95076
- MLS ID
- ML82024028
- APN
- 412-051-036-000
- Year Built
- 1985
- Stories in Building
- 2
- Possession
- COE + 3-5 Days
- Data Source
- MLSL
- Origin MLS System
- MLSListings, Inc.
Hall District Elementary School
Public K-5 Elementary
Students: 556 Distance: 1.5mi
Pajaro Middle School
Public 6-8 Middle
Students: 502 Distance: 2.6mi
Potters House Community Christian School
Private 1-12 Combined Elementary And Secondary, Religious, Coed
Students: 14 Distance: 3.1mi
Linscott Charter School
Charter K-8 Elementary
Students: 278 Distance: 3.2mi
Branson Academy, Inc.
Private K-12 Home School Program, Independent Study, Virtual Online
Students: 7 Distance: 3.2mi
Ohlone Elementary School
Public K-5 Elementary
Students: 492 Distance: 3.2mi
- Bed
- 6
- Bath
- 4
- Parking
- 0
- Attached Garage, Parking Area
- SQ FT
- 2,882
- SQ FT Source
- Unavailable
- Lot SQ FT
- 43,996.0
- Lot Acres
- 1.010009 Acres
- Cooling
- None
- Dining Room
- Dining Area
- Disclosures
- Natural Hazard Disclosure
- Family Room
- No Family Room
- Foundation
- Concrete Slab
- Fire Place
- Family Room, Gas Burning
- Heating
- Forced Air
- Laundry
- In Garage, Inside, Washer / Dryer
- Possession
- COE + 3-5 Days
- Fee
- Unavailable
MLS and other Information regarding properties for sale as shown in Theo have been obtained from various sources such as sellers, public records, agents and other third parties. This information may relate to the condition of the property, permitted or unpermitted uses, zoning, square footage, lot size/acreage or other matters affecting value or desirability. Unless otherwise indicated in writing, neither brokers, agents nor Theo have verified, or will verify, such information. If any such information is important to buyer in determining whether to buy, the price to pay or intended use of the property, buyer is urged to conduct their own investigation with qualified professionals, satisfy themselves with respect to that information, and to rely solely on the results of that investigation.
School data provided by GreatSchools. School service boundaries are intended to be used as reference only. To verify enrollment eligibility for a property, contact the school directly.